新築戸建
クレイドルガーデン豊川市赤坂町第4 1号棟

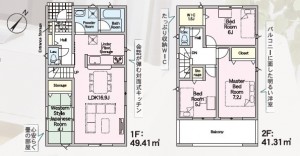
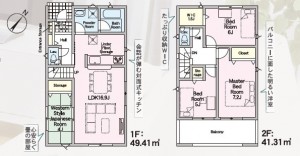
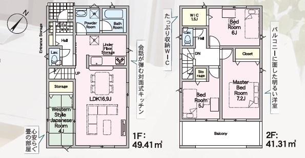
間取【1号棟】

居間【施工例】温かみのあるナチュラルテイストのLDK。ダイニングセットを置いてもゆとりがあります!

キッチン【施工例】小さなお子様にも目が届く、使い勝手の良い対面キッチンで楽しくお料理ができます!

風呂【施工例】ゆったり入れる浴槽、一日の疲れを癒してくれるくつろぎのバスタイムを…

その他画像【施工例】多機能な温水洗浄便座付きでお掃除がしやすい、清潔なトイレです

その他画像【施工例】洗髪・洗面・化粧などができる機能と収納スペースを一体化した洗面台です。

その他画像【施工例】リビングと続き間の和室は落ち着きますね!ゆったりとした時間を過ごせます。

寝室【施工例】主寝室です。二面採光で明るく、風通しも良好です。ご夫婦のくつろぎの場所として最適です!

子供部屋【施工例】お子様の一人部屋に最適な居室です。クローゼット付きで自然とお片付けできる環境に!

その他画像留守中の来訪者画像を自動で録画・保存できる録画機能を内蔵。防犯性に優れた安心のシステム。スッキリとしたデザインで、誰でも簡単に操作していだけます。

その他画像入浴後の水滴や湿気を排出し、カビの発生や臭いを抑制する換気乾燥暖房機。雨の日の洗濯物にも効果的です。

その他画像調味料やペットボトルのストックを収納する場所としても活用できる床下収納庫

その他画像電気自動車用EV充電用屋外コンセント

その他画像【ガスコンロ】お料理はかどる三口ガスコンロ!

その他画像蛇口の先端に浄水器を内蔵。浄水器ごとホースを引き出せるのでシンクのお掃除も楽々

居間ご家族みんながゆっくりくつろげる広々リビング

キッチン小さなお子様にも目が届く、使い勝手の良い対面キッチンで楽しくお料理ができます!

風呂広々1坪サイズの浴室で1日の疲れをゆったりと癒してくれます!

その他画像各フロア1カ所ずつシャワー機能付トイレを設置しており、忙しい朝の混雑も解消!

その他画像収納付三面鏡で鏡で収納部分が隠せてスッキリした洗面台に!!

その他画像和モダンのお洒落な空間。普段はお子様の遊びスペースやくつろぎスペースにも使えます!

その他画像壁面クローゼットがあればタンスを置く必要がなく、出っ張りのないスッキリ空間を維持できます。

内装ご家族とのコミュニケーションがとりやすいリビング階段

その他画像耐震+制震の家がQUIE(クワイエ)です。地震による建物の揺れを吸収し、繰り返す地震にも効果を発揮します。メンテナンスフリーで安心です。

その他画像「住宅性能表示制度」は品質の証。国土交通省に認定された第三者機関の厳正な審査を受け、設計性能評価、建設性能評価の両方を取得しています。

周辺赤坂小学校(1410m)

周辺音羽中学校(1300m)

周辺赤坂保育園(660m)

周辺グリーンセンター音羽店(710m)
| 所在地 | 愛知県豊川市赤坂町会下山 | ||
|---|---|---|---|
| 価格 | 2,390万円 | 月々支払例 | 59,198円 |
| 間取り | 4LDK | ||
| 学校区 | 赤坂小学校 音羽中学校 | ||
| 築年月 階数 |
2026年07月 2階建て | ||

2,390万円

59,198円
※全額借入、40年返済、変動金利0.89%の場合
| 物件種別 | 新築戸建 | ||
|---|---|---|---|
| 物件No. | t452025 | ||
| 所在地 | 愛知県豊川市赤坂町会下山 | ||
| 小学校区 | 赤坂小学校 (距離: 1410m) | 中学校区 | 音羽中学校 (距離: 1300m) |
| 土地面積 | 137.08m²(41坪) | 建物面積 | 100.44m²(30坪) |
|---|---|---|---|
| 構造 | 木造 | 階数 | 2階建て |
| 間取り | 4LDK | 築年月 | 2026年07月 |
| 駐車場 | 有(2台) | 水道 | 公営 |
| ガス | プロパン | 排水 | 下水 |
| 都市計画 | 用途地域 | 第一種低層住居専用 | |
|---|---|---|---|
| 地目 | 宅地 | 土地権利 | 所有権 |
| 私道負担 | 地勢 | ||
| 建ぺい率 | 60% | 容積率 | 160% |
| 現況 | 未完成 | 引渡時期 | 相談 |
| 引渡可能年月 | 2026年07月 | ||
| セールスポイント | ■耐震 + 制震の家、QUIE(クワイエ)■全居室収納付きの4LDK■LDK横の和室は休憩したり宿泊スペースに!■2部屋からアクセスできるバルコニー■ご家族とコミュニケーションがとりやすいリビング階段 | ||
| 備考 | 建基法22条指定区域 | ||
| 交通 | 名鉄名古屋本線 名電赤坂駅 徒歩13分 名鉄豊川線 国府駅 徒歩38分 名鉄名古屋本線 国府駅 バス乗車10分 バス停:音羽郵便局 停歩4分 |
||
|---|---|---|---|
| 接道状況 | 状況:一方北西側 幅員8m 公道 7m接面 | ||
| 取引態様 | 仲介 | 取引条件の有効期限 | |
| 情報登録日 | 2026年04月26日 | 次回更新日 | 2026年05月10日 |

家デパ 豊橋店
0532-39-4453
受付時間/9:00~18:30
定休日/水曜日
定休日/水曜日
家デパ 豊川店
0533-56-7072
受付時間/9:00~18:30
定休日/水曜日
定休日/水曜日
家デパ 知立店
0566-91-3344
受付時間/9:00~18:30
定休日/水曜日
定休日/水曜日
家デパ 浜松店
053-401-6610
受付時間/9:00~18:30
定休日/水曜日
定休日/水曜日
愛知県豊川市赤坂町
【物件No.】
t452025
物件No.をお知らせください

新築戸建
クレイドルガーデン豊川市赤坂町第4 2号棟
間取り:
建物面積:-
土地面積:-
建物面積:-
土地面積:-
価格
万円
2,490
頭金/ボーナス支払
円
0
月々返済
円
61,675

新築戸建
クレイドルガーデン豊川市赤坂町第4 3号棟
間取り:
建物面積:103.27m²
土地面積:141.05m²
建物面積:103.27m²
土地面積:141.05m²
価格
万円
2,490
頭金/ボーナス支払
円
0
月々返済
円
61,675

新築戸建
クレイドルガーデン豊川市小田渕町第9
間取り:
建物面積:95.58m²
土地面積:188.73m²
建物面積:95.58m²
土地面積:188.73m²
価格
万円
2,390
頭金/ボーナス支払
円
0
月々返済
円
59,198

新築戸建
リーブルガーデン豊川第76御津町御馬東 ...
間取り:
建物面積:105.39m²
土地面積:152.70m²
建物面積:105.39m²
土地面積:152.70m²
価格
万円
2,380
頭金/ボーナス支払
円
0
月々返済
円
58,950
-
豊橋市物件一覧(660件)
中古戸建…120件
新築戸建…134件
中古マンション…49件
土地…357件
-
豊川市物件一覧(292件)
中古戸建…63件
新築戸建…74件
中古マンション…13件
土地…142件
-
蒲郡市物件一覧(79件)
中古戸建…26件
新築戸建…33件
中古マンション…6件
土地…14件
-
額田郡幸田町物件一覧(1件)
中古戸建…0件
新築戸建…0件
中古マンション…0件
土地…1件
-
新城市物件一覧(25件)
中古戸建…18件
新築戸建…6件
中古マンション…0件
土地…1件
-
田原市物件一覧(71件)
中古戸建…20件
新築戸建…20件
中古マンション…0件
土地…31件
-
湖西市物件一覧(0件)
中古戸建…0件
新築戸建…0件
中古マンション…0件
土地…0件













