新築戸建
クレイドルガーデン豊川市平尾町第7

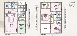
間取4LDK※図面と現況に相違ある場合には現況優先とします。

間取【3号棟】

外観【完成予想外観】 完成予想外観は、計画段階の図面を基に描き起こしたもので、形状・色等は実際とは異なる場合があります。詳細はお問い合わせください。

外観【3号棟】建築予定地です! ・4LDK ・LDK67帖、隣接和室5帖 ・全居室収納完備 ・リビング収納 ・主寝室にはテレワークルーム完備 ・2部屋からアクセスできるバルコニー ・防犯カメラ

外観建築予定地です。ご見学希望のお客様につきましては同型同仕様の物件にご案内いたします

外観地域に密着した不動産販売でお客様のニーズに、経験豊富なスタッフが柔軟にご対応させて頂きます。

外観前面道路:北西側約4m幅

外観静かな住宅街で、車の出入りもスムーズです。

外観住宅ローンにご不安のあるお客様も、まずはお気軽にご相談下さい。お客様に最適な資金計画と金融機関をご案内いたします。

外観間取りや設備等の詳細や、気になる点がございましたらお気軽にお問合せご相談ください

外観【新築分譲全3棟】ご成約キャンペーン実施中。詳細はスタッフまでお問合せ下さい。

居間【施工例】温かみのあるナチュラルテイストのLDK。ダイニングセットを置いてもゆとりがあります!

キッチン【施工例】小さなお子様にも目が届く、使い勝手の良い対面キッチンで楽しくお料理ができます!

風呂【施工例】ゆったり入れる浴槽、一日の疲れを癒してくれるくつろぎのバスタイムを…

その他画像【施工例】多機能な温水洗浄便座付きでお掃除がしやすい、清潔なトイレです

その他画像【施工例】洗髪・洗面・化粧などができる機能と収納スペースを一体化した洗面台です。

その他画像【施工例】リビングと続き間の和室は落ち着きますね!ゆったりとした時間を過ごせます。

寝室【施工例】主寝室です。二面採光で明るく、風通しも良好です。ご夫婦のくつろぎの場所として最適です!

子供部屋【施工例】お子様の一人部屋に最適な居室です。クローゼット付きで自然とお片付けできる環境に!

その他画像留守中の来訪者画像を自動で録画・保存できる録画機能を内蔵。防犯性に優れた安心のシステム。スッキリとしたデザインで、誰でも簡単に操作していだけます。

その他画像入浴後の水滴や湿気を排出し、カビの発生や臭いを抑制する換気乾燥暖房機。雨の日の洗濯物にも効果的です。

その他画像調味料やペットボトルのストックを収納する場所としても活用できる床下収納庫

その他画像電気自動車用EV充電用屋外コンセント

その他画像【ガスコンロ】お料理はかどる三口ガスコンロ!

その他画像蛇口の先端に浄水器を内蔵。浄水器ごとホースを引き出せるのでシンクのお掃除も楽々

居間ご家族みんながゆっくりくつろげる広々リビング

キッチン小さなお子様にも目が届く、使い勝手の良い対面キッチンで楽しくお料理ができます!

風呂広々1坪サイズの浴室で1日の疲れをゆったりと癒してくれます!

その他画像各フロア1カ所ずつシャワー機能付トイレを設置しており、忙しい朝の混雑も解消!
| 所在地 | 愛知県豊川市平尾町下貝津 | ||
|---|---|---|---|
| 価格 | 2,690万円 | 月々支払例 | 66,629円 |
| 間取り | 4LDK | ||
| 学校区 | 平尾小学校 中部中学校 | ||
| 築年月 階数 |
2026年07月 2階建て | ||

2,690万円

66,629円
※全額借入、40年返済、変動金利0.89%の場合
| 物件種別 | 新築戸建 | ||
|---|---|---|---|
| 物件No. | t451737 | ||
| 所在地 | 愛知県豊川市平尾町下貝津 | ||
| 小学校区 | 平尾小学校 (距離: 850m) | 中学校区 | 中部中学校 (距離: 1440m) |
| 土地面積 | 162.39m²(49坪) | 建物面積 | 95.98m²(29坪) |
|---|---|---|---|
| 構造 | 木造 | 階数 | 2階建て |
| 間取り | 4LDK | 築年月 | 2026年07月 |
| 駐車場 | 有(2台) | 水道 | 公営 |
| ガス | プロパン | 排水 | 下水 |
| 都市計画 | 市街化区域 | 用途地域 | 第一種低層住居専用 |
|---|---|---|---|
| 地目 | 宅地 | 土地権利 | 所有権 |
| 私道負担 | 地勢 | ||
| 建ぺい率 | 60% | 容積率 | 100% |
| 現況 | 未完成 | 引渡時期 | 相談 |
| 引渡可能年月 | 2026年07月 | ||
| セールスポイント | ■主寝室にはテレワークルーム完備■和室完備■全居室収納付き■2部屋からアクセスできるバルコニー■バス停「上藤井」まで徒歩5分■駐車並列2台可能■耐震 + 制震の家、QUIE(クワイエ)■閑静な住宅街 | ||
| 備考 | ・法第22条区域、宅地造成等工事規制区域、平尾第2地区地区計画 ・協定地:1.47平米 | ||
| 交通 | 名鉄名古屋本線 国府駅 徒歩23分 名鉄豊川線 八幡駅 徒歩30分 名鉄名古屋本線 国府駅 バス乗車8分 バス停:上藤井 停歩5分 |
||
|---|---|---|---|
| 接道状況 | 状況:一方北西側 幅員4m 公道 4.7m接面 | ||
| 取引態様 | 仲介 | 取引条件の有効期限 | |
| 情報登録日 | 2026年05月15日 | 次回更新日 | 2026年05月29日 |

家デパ 豊橋店
0532-39-4453
受付時間/9:00~18:30
定休日/水曜日
定休日/水曜日
家デパ 豊川店
0533-56-7072
受付時間/9:00~18:30
定休日/水曜日
定休日/水曜日
家デパ 知立店
0566-91-3344
受付時間/9:00~18:30
定休日/水曜日
定休日/水曜日
家デパ 浜松店
053-401-6610
受付時間/9:00~18:30
定休日/水曜日
定休日/水曜日
愛知県豊川市平尾町
【物件No.】
t451737
物件No.をお知らせください

新築戸建
クレイドルガーデン豊川市平尾町第7
間取り:
建物面積:-
土地面積:-
建物面積:-
土地面積:-
価格
万円
2,590
頭金/ボーナス支払
円
0
月々返済
円
64,152

新築戸建
クレイドルガーデン豊川市平尾町第7
間取り:
建物面積:98.81m²
土地面積:162.39m²
建物面積:98.81m²
土地面積:162.39m²
価格
万円
2,690
頭金/ボーナス支払
円
0
月々返済
円
66,629

新築戸建
グラファーレ豊川市小坂井町第2期 1号棟
間取り:
建物面積:99.78m²
土地面積:177.31m²
建物面積:99.78m²
土地面積:177.31m²
価格
万円
2,780
頭金/ボーナス支払
円
0
月々返済
円
68,858

新築戸建
グラファーレ豊川市小坂井町第2期 3号棟
間取り:
建物面積:-
土地面積:-
建物面積:-
土地面積:-
価格
万円
2,680
頭金/ボーナス支払
円
0
月々返済
円
66,381
-
豊橋市物件一覧(653件)
中古戸建…120件
新築戸建…130件
中古マンション…50件
土地…353件
-
豊川市物件一覧(291件)
中古戸建…59件
新築戸建…68件
中古マンション…14件
土地…150件
-
蒲郡市物件一覧(80件)
中古戸建…25件
新築戸建…34件
中古マンション…6件
土地…15件
-
額田郡幸田町物件一覧(1件)
中古戸建…0件
新築戸建…0件
中古マンション…0件
土地…1件
-
新城市物件一覧(26件)
中古戸建…18件
新築戸建…7件
中古マンション…0件
土地…1件
-
田原市物件一覧(75件)
中古戸建…20件
新築戸建…25件
中古マンション…0件
土地…30件
-
湖西市物件一覧(0件)
中古戸建…0件
新築戸建…0件
中古マンション…0件
土地…0件













