新築戸建
FelidiaGarden豊橋市東田町 2号棟
| 所在地 | 愛知県豊橋市東田町 | ||
|---|---|---|---|
| 価格 | 3,980万円 | 月々支払例 | 98,581円 |
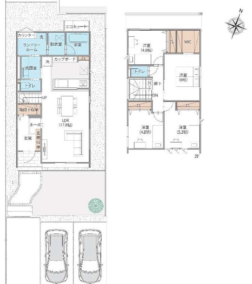
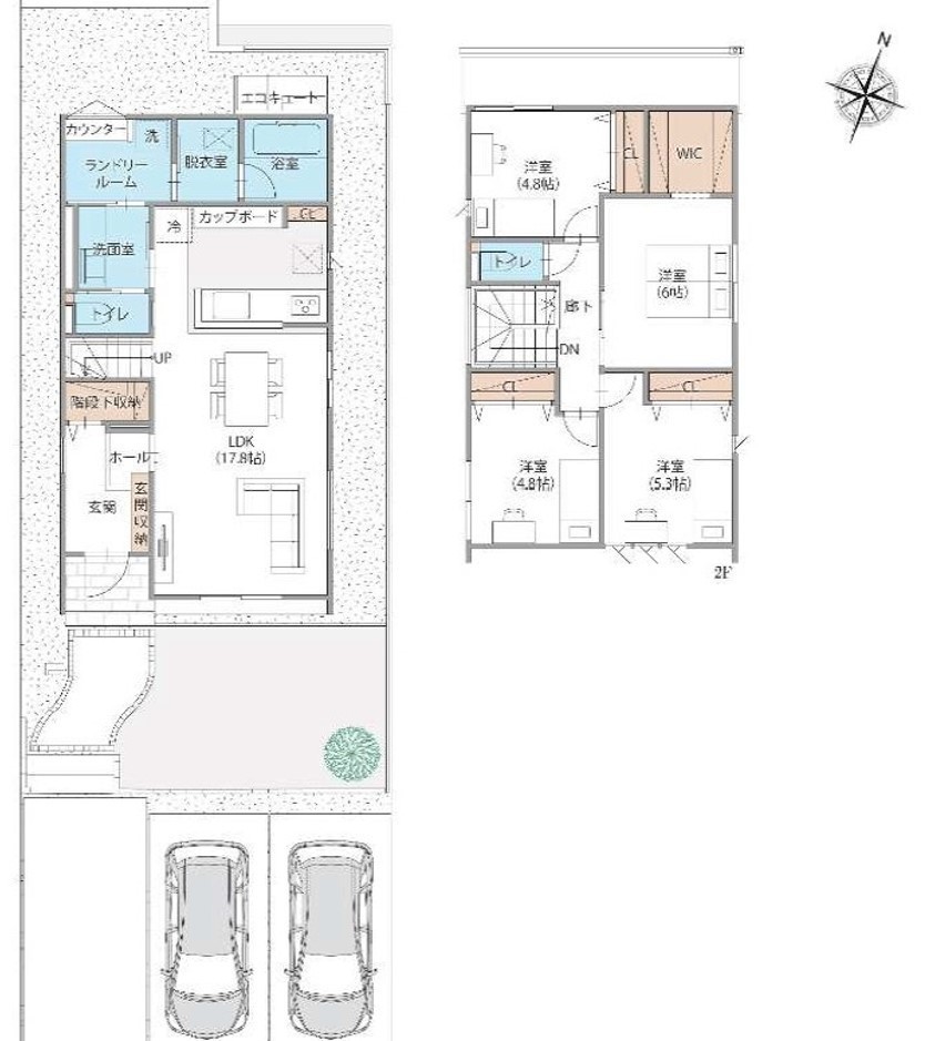
| 間取り | 4LDK | ||
| 学校区 | 東田小学校 青陵中学校 | ||
| 築年月 階数 |
2025年09月 2階建て | ||

3,980万円

98,581円
※全額借入、40年返済、変動金利0.89%の場合
| 物件種別 | 新築戸建 | ||
|---|---|---|---|
| 物件No. | t437939 | ||
| 所在地 | 愛知県豊橋市東田町 | ||
| 小学校区 | 東田小学校 (距離: 1050m) | 中学校区 | 青陵中学校 (距離: 1660m) |
| 土地面積 | 165.69m²(50坪) | 建物面積 | 102.67m²(31坪) |
|---|---|---|---|
| 構造 | 木造 | 階数 | 2階建て |
| 間取り | 4LDK | 築年月 | 2025年09月 |
| 駐車場 | 有(2台) | 水道 | 公営 |
| ガス | オール電化 | 排水 | 下水 |
| 都市計画 | 市街化区域 | 用途地域 | 第一種中高層住居専用 |
|---|---|---|---|
| 地目 | 宅地 | 土地権利 | 所有権 |
| 私道負担 | 地勢 | ||
| 建ぺい率 | 60% | 容積率 | 200% |
| 現況 | 完成済 | 引渡時期 | 相談 |
| 引渡可能年月 | |||
| 備考 | 法22条区域、景観法、都市再生特別措置法、建築物の高さの制限、日影制限あり | ||
| 交通 | 豊橋鉄道東田本線 井原駅 徒歩9分 |
||
|---|---|---|---|
| 接道状況 | 状況:一方南側 幅員5.4m 公道 | ||
| 取引態様 | 仲介 | 取引条件の有効期限 | |
| 情報登録日 | 2026年05月25日 | 次回更新日 | 2026年06月08日 |

家デパ 豊橋店
0532-39-4453
受付時間/9:00~18:30
定休日/水曜日
定休日/水曜日
家デパ 豊川店
0533-56-7072
受付時間/9:00~18:30
定休日/水曜日
定休日/水曜日
家デパ 知立店
0566-91-3344
受付時間/9:00~18:30
定休日/水曜日
定休日/水曜日
家デパ 浜松店
053-401-6610
受付時間/9:00~18:30
定休日/水曜日
定休日/水曜日
愛知県豊橋市東田町
【物件No.】
t437939
物件No.をお知らせください

新築戸建
タマタウン牛川通2 4号棟
間取り:
建物面積:-
土地面積:-
建物面積:-
土地面積:-
価格
万円
3,980
頭金/ボーナス支払
円
0
月々返済
円
98,581

新築戸建
豊橋市上野町新上野3 4号棟
間取り:
建物面積:-
土地面積:-
建物面積:-
土地面積:-
価格
万円
3,880
頭金/ボーナス支払
円
0
月々返済
円
96,104

新築戸建
タマタウン牛川通2 1号棟
間取り:
建物面積:-
土地面積:-
建物面積:-
土地面積:-
価格
万円
3,880
頭金/ボーナス支払
円
0
月々返済
円
96,104

新築戸建
FelidiaGarden豊橋市東小鷹野2丁目 3号棟
間取り:
建物面積:105.37m²
土地面積:149.79m²
建物面積:105.37m²
土地面積:149.79m²
価格
万円
3,999
頭金/ボーナス支払
円
0
月々返済
円
99,051
-
豊橋市物件一覧(664件)
中古戸建…123件
新築戸建…134件
中古マンション…48件
土地…359件
-
豊川市物件一覧(291件)
中古戸建…59件
新築戸建…64件
中古マンション…16件
土地…152件
-
蒲郡市物件一覧(79件)
中古戸建…24件
新築戸建…34件
中古マンション…6件
土地…15件
-
額田郡幸田町物件一覧(1件)
中古戸建…0件
新築戸建…0件
中古マンション…0件
土地…1件
-
新城市物件一覧(25件)
中古戸建…17件
新築戸建…7件
中古マンション…0件
土地…1件
-
田原市物件一覧(77件)
中古戸建…22件
新築戸建…25件
中古マンション…0件
土地…30件
-
湖西市物件一覧(0件)
中古戸建…0件
新築戸建…0件
中古マンション…0件
土地…0件





























