新築戸建
FelidiaGarden豊川市代田2丁目 4号棟
| 所在地 | 愛知県豊川市代田町2丁目 | ||
|---|---|---|---|
| 価格 | 3,990万円 | 月々支払例 | 98,828円 |
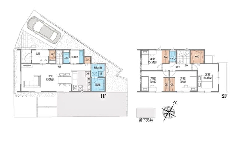
| 間取り | 4LDK | ||
| 学校区 | 代田小学校 代田中学校 | ||
| 築年月 階数 |
2026年02月 2階建て | ||

3,990万円

98,828円
※全額借入、40年返済、変動金利0.89%の場合
| 物件種別 | 新築戸建 | ||
|---|---|---|---|
| 物件No. | 2511167 | ||
| 所在地 | 愛知県豊川市代田町2丁目 | ||
| 小学校区 | 代田小学校 (距離: 520m) | 中学校区 | 代田中学校 (距離: 450m) |
| 土地面積 | 147.89m²(45坪) | 建物面積 | 104.33m²(32坪) |
|---|---|---|---|
| 構造 | 木造 | 階数 | 2階建て |
| 間取り | 4LDK | 築年月 | 2026年02月 |
| 駐車場 | 有(1台) | 水道 | 公営 |
| ガス | オール電化 | 排水 | 下水 |
| 都市計画 | 市街化区域 | 用途地域 | 第一種住居 |
|---|---|---|---|
| 地目 | 宅地 | 土地権利 | 所有権 |
| 私道負担 | 地勢 | 平坦 | |
| 建ぺい率 | 60% | 容積率 | 200% |
| 現況 | 未完成 | 引渡時期 | 相談 |
| 引渡可能年月 | 2026年02月 | ||
| セールスポイント | ■代田小・代田中学校まで徒歩7分圏内でお子様の通学も安心 ■ヤマダホームズ注文住宅仕様の「4LDK」 ■安心・安全「オール電化住宅」 ■家計にうれしい「太陽光発電システム」搭載 ■便利な室内設備充実 | ||
| 備考 | ヤマダホームズ注文住宅仕様 太陽光発電4.4kw搭載 IoT標準仕様 | ||
| 交通 | 名鉄豊川線 八幡駅 徒歩12分 |
||
|---|---|---|---|
| 接道状況 | 状況:一方北西側 幅員5.9m 公道 | ||
| 取引態様 | 仲介 | 取引条件の有効期限 | |
| 情報登録日 | 2026年04月19日 | 次回更新日 | 2026年05月03日 |

家デパ 豊橋店
0532-39-4453
受付時間/9:00~18:30
定休日/水曜日
定休日/水曜日
家デパ 豊川店
0533-56-7072
受付時間/9:00~18:30
定休日/水曜日
定休日/水曜日
家デパ 知立店
0566-91-3344
受付時間/9:00~18:30
定休日/水曜日
定休日/水曜日
家デパ 浜松店
053-401-6610
受付時間/9:00~18:30
定休日/水曜日
定休日/水曜日
愛知県豊川市代田町
【物件No.】
2511167
物件No.をお知らせください

新築戸建
タマタウン豊川三蔵子 1号棟
間取り:
建物面積:117.58m²
土地面積:157.75m²
建物面積:117.58m²
土地面積:157.75m²
価格
万円
4,080
頭金/ボーナス支払
円
0
月々返済
円
101,058

新築戸建
豊川市大木新町通一丁目1 2号棟
間取り:
建物面積:127.53m²
土地面積:157.56m²
建物面積:127.53m²
土地面積:157.56m²
価格
万円
4,080
頭金/ボーナス支払
円
0
月々返済
円
101,058

新築戸建
豊川市八幡町弥五郎2 4号棟
間取り:
建物面積:-
土地面積:-
建物面積:-
土地面積:-
価格
万円
3,980
頭金/ボーナス支払
円
0
月々返済
円
98,581

新築戸建
タマタウン豊川三蔵子 3号棟
間取り:
建物面積:109.29m²
土地面積:157.70m²
建物面積:109.29m²
土地面積:157.70m²
価格
万円
3,980
頭金/ボーナス支払
円
0
月々返済
円
98,581
-
豊橋市物件一覧(648件)
中古戸建…114件
新築戸建…136件
中古マンション…47件
土地…351件
-
豊川市物件一覧(283件)
中古戸建…61件
新築戸建…71件
中古マンション…13件
土地…138件
-
蒲郡市物件一覧(81件)
中古戸建…26件
新築戸建…34件
中古マンション…6件
土地…15件
-
額田郡幸田町物件一覧(1件)
中古戸建…0件
新築戸建…0件
中古マンション…0件
土地…1件
-
新城市物件一覧(25件)
中古戸建…18件
新築戸建…6件
中古マンション…0件
土地…1件
-
田原市物件一覧(71件)
中古戸建…20件
新築戸建…20件
中古マンション…0件
土地…31件
-
湖西市物件一覧(0件)
中古戸建…0件
新築戸建…0件
中古マンション…0件
土地…0件

























