中古戸建
豊橋市西幸町字浜池 戸建

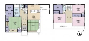
間取4SLDK

間取整形地

居間ご家族みんながゆっくりくつろげる広々リビング

キッチン小さなお子様にも目が届く、使い勝手の良い対面キッチンで楽しくお料理ができます!

風呂ゆったり入れる浴槽、一坪サイズのゆとりの空間。一日の疲れを癒してくれるくつろぎのバスタイムを…

その他画像窓付きで換気がしやすいトイレ!収納スペースもあります。

その他画像収納力と機能性に優れた洗面台で、朝の忙しい時間でも身支度準備がスムーズにできます。

その他画像ゆったりとくつろげる和室!お子様の遊び場や家族団らんのスペースになりそうですね!

その他画像二面採光のため明るく風通し良好!

その他画像たくさん物が置けるので、趣味の物や非常用の備蓄庫としても利用できます。

玄関日差しが心地よく差し込む玄関は朝の出勤・通学、お買い物など、日々のお出かけが楽しくなります!

その他画像全居室にしっかりとした大きさのクローゼットを完備し、収納スペースも十分です。

その他画像腰窓で机や家具の配置がしやすい洋室6帖。

その他画像洗濯物や布団干しスペースを広々と確保。

外観前面道路は車通り少ないのでお子様も安心して暮らせる環境です

外観前面道路:南側公道3.7m幅

外観物件はもちろん、周辺環境やお店の情報などなんでもお尋ねください!

外観お客様目線で購入をサポート!ご購入のご相談は家デパへ!

外観地域に密着した不動産販売でお客様のニーズに、経験豊富なスタッフが柔軟にご対応させて頂きます。

周辺幸小学校(840m)

周辺高師台中学校(210m)

周辺高師東こども園(380m)

周辺フィール豊橋あけぼの店(970m)

周辺ココカラファインあけぼの店(1190m)

周辺ファミリーマート豊橋浜道店(740m)

周辺豊橋幸郵便局(860m)

周辺岡崎信用金庫 曙支店(910m)

周辺芳賀クリニック(650m)
| 所在地 | 愛知県豊橋市西幸町 | ||
|---|---|---|---|
| 価格 | 2,450万円 | 月々支払例 | 60,684円 |
| 間取り | 4SLDK | ||
| 学校区 | 幸小学校 高師台中学校 | ||
| 築年月 階数 |
2008年04月 2階建て | ||

2,450万円

60,684円

69,353円
※全額借入、40年返済、変動金利0.89%の場合
| 物件種別 | 中古戸建 | ||
|---|---|---|---|
| 物件No. | 2601063 | ||
| 所在地 | 愛知県豊橋市西幸町 | ||
| 小学校区 | 幸小学校 (距離: 840m) | 中学校区 | 高師台中学校 (距離: 210m) |
| 土地面積 | 203.45m²(62坪) | 建物面積 | 141.59m²(43坪) |
|---|---|---|---|
| 構造 | 木造 | 階数 | 2階建て |
| 間取り | 4SLDK | 築年月 | 2008年04月 |
| 駐車場 | 有(3台) | 水道 | 公営 |
| ガス | 都市 | 排水 |
| 都市計画 | 市街化調整区域 | 用途地域 | 無指定 |
|---|---|---|---|
| 地目 | 宅地 | 土地権利 | 所有権 |
| 私道負担 | 地勢 | 平坦 | |
| 建ぺい率 | 60% | 容積率 | 200% |
| 現況 | 居住中 | 引渡時期 | 相談 |
| 引渡可能年月 | |||
| セールスポイント | ■ガレージ付き「4SLDK」 ■南向きリビング18帖 ■平坦で閑静な住宅地 ■便利な納戸完備 ■南向き広々バルコニー ■全居室収納完備 ■全居室6帖以上と広々! ■会話弾む対面キッチン | ||
| 備考 | 脱衣所部分床傷みあり 間取り:4SLDK | ||
| 交通 | JR東海道本線 豊橋駅 バス乗車28分 バス停:サイエンスコア入口 停歩7分 |
||
|---|---|---|---|
| 接道状況 | 状況:一方南側 幅員3.7m 公道 14.8m接面 | ||
| 取引態様 | 仲介 | 取引条件の有効期限 | |
| 情報登録日 | 2026年04月24日 | 次回更新日 | 2026年05月08日 |

家デパ 豊橋店
0532-39-4453
受付時間/9:00~18:30
定休日/水曜日
定休日/水曜日
家デパ 豊川店
0533-56-7072
受付時間/9:00~18:30
定休日/水曜日
定休日/水曜日
家デパ 知立店
0566-91-3344
受付時間/9:00~18:30
定休日/水曜日
定休日/水曜日
家デパ 浜松店
053-401-6610
受付時間/9:00~18:30
定休日/水曜日
定休日/水曜日
愛知県豊橋市西幸町
【物件No.】
2601063
物件No.をお知らせください

中古戸建
豊橋市西幸町字古並 戸建
間取り:
建物面積:-
土地面積:-
建物面積:-
土地面積:-
価格
万円
2,480
頭金/ボーナス支払
円
0
月々返済
円
61,427

中古戸建
豊橋市南牛川1丁目 戸建
間取り:
建物面積:98.53m²
土地面積:137.33m²
建物面積:98.53m²
土地面積:137.33m²
価格
万円
2,450
頭金/ボーナス支払
円
0
月々返済
円
60,684

中古戸建
豊橋市東幸町字大山 戸建
間取り:
建物面積:136.42m²
土地面積:198.41m²
建物面積:136.42m²
土地面積:198.41m²
価格
万円
2,529
頭金/ボーナス支払
円
0
月々返済
円
62,641

中古戸建
豊橋市王ケ崎町字宮脇 戸建
間取り:
建物面積:-
土地面積:-
建物面積:-
土地面積:-
価格
万円
2,499
頭金/ボーナス支払
円
0
月々返済
円
61,898
-
豊橋市物件一覧(648件)
中古戸建…115件
新築戸建…134件
中古マンション…48件
土地…351件
-
豊川市物件一覧(281件)
中古戸建…62件
新築戸建…67件
中古マンション…13件
土地…139件
-
蒲郡市物件一覧(79件)
中古戸建…26件
新築戸建…33件
中古マンション…6件
土地…14件
-
額田郡幸田町物件一覧(1件)
中古戸建…0件
新築戸建…0件
中古マンション…0件
土地…1件
-
新城市物件一覧(25件)
中古戸建…18件
新築戸建…6件
中古マンション…0件
土地…1件
-
田原市物件一覧(71件)
中古戸建…20件
新築戸建…20件
中古マンション…0件
土地…31件
-
湖西市物件一覧(0件)
中古戸建…0件
新築戸建…0件
中古マンション…0件
土地…0件













