中古戸建
豊橋市杉山町字いずみが丘 戸建

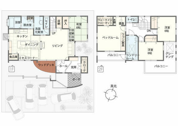
間取3LDK+タタミコーナー6帖 ※図面と現況に相違ある場合には現況優先とします。

居間ご家族みんながゆっくりくつろげる広々リビング

キッチンスペースが広く、調理器具などを置いてもスッキリと使えます。

風呂ゆったり入れる浴槽、一坪サイズのゆとりの空間。一日の疲れを癒してくれるくつろぎのバスタイムを…

その他画像各フロア1カ所ずつシャワー機能付トイレを設置しており、忙しい朝の混雑も解消!

その他画像豊富な収納があるので、見られたくないものの収納に便利

その他画像全居室にしっかりとした大きさのクローゼットを完備し、収納スペースも十分です。

寝室寝室には大きな収納スペースがあり、室内を広々と利用できます!

内装小上がりタタミコーナーは6帖!

内装日当たり良好のカウンターは使い方自由

その他画像屋根のあるインナータイプのバルコニーだから、急な雨でも洗濯物が濡れにくくて安心

外観開放感のあるウッドデッキ付き

玄関小窓を設置することで光が入りやすく、明るい玄関に。帰宅した瞬間から明るく清々しい気分に!

その他画像窓があって明るいスペース!

周辺杉山小学校(1550m)

周辺章南中学校(3760m)

周辺杉山保育園(1540m)

周辺イオン 田原店(3900m)

周辺ファミリーマート豊橋杉山町店(1070m)

周辺ココカラファイン田原豊島店(3040m)

周辺老津郵便局(3330m)

周辺豊橋信用金庫 田原支店(3510m)

周辺富永医院(2360m)
所在地 | 愛知県豊橋市杉山町字いずみが丘 | ||
---|---|---|---|
価格 | 2,480万円 | 月々支払例 | 61,427円 |
間取り | 3LDK | ||
学校区 | 杉山小学校 章南中学校 | ||
築年月 階数 |
2005年09月 2階建て |



2,480万円

61,427円


70,096円
※全額借入、40年返済、変動金利0.89%の場合
物件種別 | 中古戸建 | ||
---|---|---|---|
物件No. | 2510012 | ||
所在地 | 愛知県豊橋市杉山町字いずみが丘 | ||
小学校区 | 杉山小学校 (距離: 1550m) | 中学校区 | 章南中学校 (距離: 3760m) |
土地面積 | 209.63m²(63坪) | 建物面積 | 138.50m²(42坪) |
---|---|---|---|
構造 | 木造 | 階数 | 2階建て |
間取り | 3LDK | 築年月 | 2005年09月 |
駐車場 | 有 | 水道 | 公営 |
ガス | オール電化 | 排水 | 下水 |
都市計画 | 市街化調整区域 | 用途地域 | 無指定 |
---|---|---|---|
地目 | 宅地 | 土地権利 | 所有権 |
私道負担 | 地勢 | ||
建ぺい率 | 60% | 容積率 | 200% |
現況 | 空家 | 引渡時期 | 相談 |
引渡可能年月 | |||
セールスポイント | ■安心のオール電化■ランドリールーム完備の「4LDK」■床暖房付き■2面バルコニー■小上がりタタミコーナーは収納力向上、子育て、くつろぎスペースに便利!■WIC完備■渥美線「やぐま台」駅まで徒歩4分 | ||
備考 | ・建築確認完了検査済証あり、新築時・増改築時の設計図書あり ・現況有姿渡し 【リフォーム済:2024年7月実施】外壁、バルコニー手摺塗装 |
交通 | 豊橋鉄道渥美線 やぐま台駅 徒歩4分 豊橋鉄道渥美線 杉山駅 徒歩19分 |
||
---|---|---|---|
接道状況 | 状況:一方南側 幅員6m 公道 13.9m接面 | ||
取引態様 | 仲介 | 取引条件の有効期限 | |
情報登録日 | 2025年10月22日 | 次回更新日 | 2025年11月05日 |

家デパ 豊橋店
0532-39-4453
受付時間/9:00~18:30
定休日/水曜日
定休日/水曜日
家デパ 豊川店
0533-56-7072
受付時間/9:00~18:30
定休日/水曜日
定休日/水曜日
家デパ 知立店
0566-91-3344
受付時間/9:00~18:30
定休日/水曜日
定休日/水曜日
家デパ 浜松店
053-401-6610
受付時間/9:00~18:30
定休日/水曜日
定休日/水曜日
愛知県豊橋市杉山町
【物件No.】
2510012
物件No.をお知らせください

中古戸建
豊橋市杉山町字七股池 戸建
間取り:
建物面積:-
土地面積:-
建物面積:-
土地面積:-
価格
万円
2,380
頭金/ボーナス支払
円
0
月々返済
円
58,950

中古戸建
豊橋市西幸町字古並 戸建
間取り:
建物面積:207.01m²
土地面積:500.01m²
建物面積:207.01m²
土地面積:500.01m²
価格
万円
2,480
頭金/ボーナス支払
円
0
月々返済
円
61,427

中古戸建
豊橋市佐藤2丁目 戸建
間取り:
建物面積:151.81m²
土地面積:198.67m²
建物面積:151.81m²
土地面積:198.67m²
価格
万円
2,490
頭金/ボーナス支払
円
0
月々返済
円
61,675

中古戸建
豊橋市若松町字豊美 戸建
間取り:
建物面積:-
土地面積:-
建物面積:-
土地面積:-
価格
万円
2,500
頭金/ボーナス支払
円
0
月々返済
円
61,923

-
豊橋市物件一覧(688件)
中古戸建…117件
新築戸建…156件
中古マンション…65件
土地…350件
-
豊川市物件一覧(336件)
中古戸建…59件
新築戸建…101件
中古マンション…9件
土地…167件
-
蒲郡市物件一覧(100件)
中古戸建…24件
新築戸建…49件
中古マンション…9件
土地…18件
-
額田郡幸田町物件一覧(1件)
中古戸建…1件
新築戸建…0件
中古マンション…0件
土地…0件
-
新城市物件一覧(17件)
中古戸建…11件
新築戸建…4件
中古マンション…0件
土地…2件
-
田原市物件一覧(50件)
中古戸建…18件
新築戸建…7件
中古マンション…0件
土地…25件
-
湖西市物件一覧(1件)
中古戸建…0件
新築戸建…1件
中古マンション…0件
土地…0件