






























| 価格 | 2,810万円 | 築年月 | 1989年11月 |
|---|---|---|---|
| 面積 |
130.67m²(40坪) 298.35m²(90坪) |
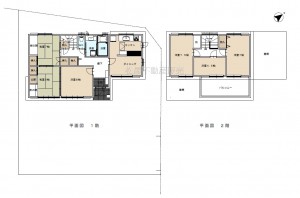
間取り | 6DK |

| 物件種別 | 中古戸建 | 物件No. | 2510110 |
|---|---|---|---|
| 所在地 | 愛知県豊橋市牟呂水神町 | ||
| 小学校 | 牟呂小学校 (距離: 1060m) |
中学校 | 牟呂中学校 (距離: 1410m) |
| 土地面積 | 298.35m²(90坪) | 建物面積 | 130.67m²(40坪) |
|---|---|---|---|
| 構造 | 軽量鉄骨 | 階数 | 2階建て |
| 間取り | 6DK | 築年月 | 1989年11月 |
| 駐車場 | 有 | 水道 | 公営 |
| ガス | 都市 | 排水 | 下水 |
| 都市計画 | 市街化区域 | 私道負担 | |
|---|---|---|---|
| 地目 | 宅地 | 地勢 | |
| 土地権利 | 所有権 | 用途地域 | 第一種中高層住居専用 |
| 建ぺい率 | 60% | 容積率 | 200% |
| 現況 | 居住中 | 引渡時期 | 相談 |
| 引渡可能年月 | |||
| セールスポイント | ■土地約90坪、北西角地に位置し開放感のある立地■6DKの間取りで二世帯・大家族・在宅ワークにも対応■日当たり・通風ともに良好でゆとりある暮らしが可能■お庭や家庭菜園スペースとしても活用できる広さ | ||
| 備考 | ・居住誘導区域 ・埋蔵文化財包蔵地 | ||
| 交通 | JR東海道本線 豊橋駅 バス乗車7分 バス停:外神 停歩5分 |
||
|---|---|---|---|
| 接道状況 | 状況:角地西側 幅員7m 公道 15m接面北側 幅員14m 公道 15m接面 | ||
| 取引態様 | 仲介 | 取引条件の有効期限 | |
| 情報登録日 | 2026年02月20日 | 次回更新日 | 2026年03月06日 |