土地
豊橋市新栄町東小向 売地

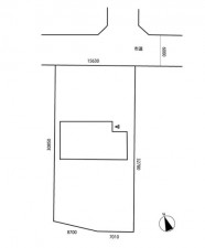
間取整形地 ※図面と現況に相違ある場合には現況優先とします。

外観前面道路:南東側公道5.2m幅 静かな住宅街で、車の出入りもスムーズです。

外観知識豊富なスタッフが各種オプションや住宅ローンのご相談にご対応致します

外観インターネットに掲載していない物件等も多数取り扱っています!まずはお気軽にお問い合わせください。

外観お客様目線で購入をサポート!ご購入のご相談は家デパへ!

外観前面道路は車通りも少ないのでお子様も安心して暮らせる環境です

周辺吉田方小学校(380m)

周辺吉田方中学校(1870m)

周辺吉田方保育園(510m)

周辺JAファーマーズマーケット吉田方店(530m)

周辺ドラッグスギヤマ花田店(510m)

周辺ファミリーマート豊橋吉川店(550m)

周辺豊橋吉川郵便局(380m)

周辺豊橋信用金庫 吉田方支店(470m)

周辺杉浦内科(220m)

周辺吉田方西保育園(950m)

周辺フィールこもぐち店(830m)

周辺ゲンキー北小向店(510m)

周辺ファミリーマート 豊橋花田荒木店(760m)

周辺豊橋北島郵便局(1380m)

周辺豊川信用金庫 菰口支店(600m)

周辺西田メディカルクリニック(580m)
| 所在地 | 愛知県豊橋市新栄町字東小向 | ||
|---|---|---|---|
| 価格 | 780万円 | 月々支払例 | 19,320円 |
| 学校区 | 吉田方小学校 吉田方中学校 | ||

780万円

19,320円
※全額借入、40年返済、変動金利0.89%の場合
| 物件種別 | 土地 | ||
|---|---|---|---|
| 物件No. | 2407049 | ||
| 所在地 | 愛知県豊橋市新栄町字東小向 | ||
| 小学校区 | 吉田方小学校 (距離: 380m) | 中学校区 | 吉田方中学校 (距離: 1870m) |
| 土地面積 | 82.64m²(25坪) | ||
|---|---|---|---|
| 駐車場 | 水道 | 公営 | |
| ガス | 都市 | 排水 | 下水 |
| 都市計画 | 市街化区域 | 用途地域 | 準工業 |
|---|---|---|---|
| 地目 | 宅地 | 土地権利 | 所有権 |
| 私道負担 | 地勢 | ||
| 建ぺい率 | 60% | 容積率 | 200% |
| 現況 | 上物有 | 引渡時期 | 相談 |
| 引渡可能年月 | |||
| セールスポイント | ■吉田方小学校まで徒歩5分♪ ■南東向きで日当たり良好♪ ■周辺にはお買い物施設が充実♪ ■国道23号線へのアクセス良好でお出掛けにも便利♪ ■バス停「吉川町」まで徒歩3分 | ||
| 備考 | ※居住誘導区域 ※歩いて暮らせるまち区域内 ※法22条区域 ※大規模集客施設制限地区 ※津波災害警戒区域内 ※解体更地渡しの場合:880万円 | ||
| 交通 | JR飯田線 船町駅 徒歩18分 |
||
|---|---|---|---|
| 接道状況 | 状況:一方南東側 幅員5.2m 公道 5m接面 | ||
| 取引態様 | 仲介 | 取引条件の有効期限 | |
| 情報登録日 | 2026年01月05日 | 次回更新日 | 2026年01月19日 |

家デパ 豊橋店
0532-39-4453
受付時間/9:00~18:30
定休日/水曜日
定休日/水曜日
家デパ 豊川店
0533-56-7072
受付時間/9:00~18:30
定休日/水曜日
定休日/水曜日
家デパ 知立店
0566-91-3344
受付時間/9:00~18:30
定休日/水曜日
定休日/水曜日
家デパ 浜松店
053-401-6610
受付時間/9:00~18:30
定休日/水曜日
定休日/水曜日
愛知県豊橋市新栄町
【物件No.】
2407049
物件No.をお知らせください

土地
豊橋市東赤沢町字観音堂 売地
間取り:
建物面積:-
土地面積:-
建物面積:-
土地面積:-
価格
万円
700
頭金/ボーナス支払
円
0
月々返済
円
17,339

土地
豊橋市多米東町2丁目 5号地
間取り:
建物面積:-
土地面積:159.74m²
建物面積:-
土地面積:159.74m²
価格
万円
869.76
頭金/ボーナス支払
円
0
月々返済
円
21,543

土地
豊橋市前芝町字西青 D区画
間取り:
建物面積:-
土地面積:-
建物面積:-
土地面積:-
価格
万円
700
頭金/ボーナス支払
円
0
月々返済
円
17,339

土地
豊橋市南栄町字空池 売地
間取り:
建物面積:-
土地面積:88.66m²
建物面積:-
土地面積:88.66m²
価格
万円
732
頭金/ボーナス支払
円
0
月々返済
円
18,131
-
豊橋市物件一覧(700件)
中古戸建…125件
新築戸建…165件
中古マンション…58件
土地…352件
-
豊川市物件一覧(313件)
中古戸建…62件
新築戸建…86件
中古マンション…13件
土地…152件
-
蒲郡市物件一覧(96件)
中古戸建…25件
新築戸建…49件
中古マンション…7件
土地…15件
-
額田郡幸田町物件一覧(1件)
中古戸建…1件
新築戸建…0件
中古マンション…0件
土地…0件
-
新城市物件一覧(23件)
中古戸建…13件
新築戸建…9件
中古マンション…0件
土地…1件
-
田原市物件一覧(51件)
中古戸建…16件
新築戸建…7件
中古マンション…1件
土地…27件
-
湖西市物件一覧(0件)
中古戸建…0件
新築戸建…0件
中古マンション…0件
土地…0件













