新築戸建
タマタウン牛川通2 2号棟

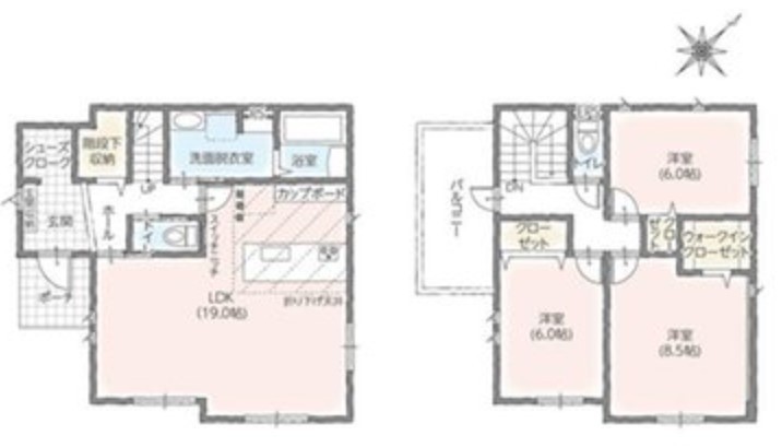
間取3LDK※図面と現況に相違ある場合には現況優先とします。

間取【2号棟】

外観上棟しました。ご見学希望のお客様につきましては同型同仕様の物件にご案内いたします

外観地域に密着した不動産販売でお客様のニーズに、経験豊富なスタッフが柔軟にご対応させて頂きます。

外観前面道路:南西側約●m幅

外観前面道路が広いので運転が苦手な方にも安心です

外観前面道路:北西側約●m幅

外観静かな住宅街で、車の出入りもスムーズです。

外観間取りや設備等の詳細や、気になる点がございましたらお気軽にお問合せご相談ください

外観住宅ローンにご不安のあるお客様も、まずはお気軽にご相談下さい。お客様に最適な資金計画と金融機関をご案内いたします。

外観【新築分譲全4棟】ご成約キャンペーン実施中。詳細はスタッフまでお問合せ下さい。

その他画像留守中の来訪者画像を自動で録画・保存できる録画機能を内蔵。防犯性に優れた安心のシステム。スッキリとしたデザインで、誰でも簡単に操作していだけます。

その他画像【ガスコンロ】お料理はかどる三口ガスコンロ!

その他画像調味料やペットボトルのストックを収納する場所としても活用できる床下収納庫

居間のんびりくつろぐソファや、お食事を楽しむダイニングセットを置いても圧迫感はありません。

キッチン小さなお子様にも目が届く、使い勝手の良い対面キッチンで楽しくお料理ができます!

風呂広々1坪サイズの浴室で1日の疲れをゆったりと癒してくれます!

その他画像温水洗浄機能の付いた快適なトイレ

その他画像洗面台の三面鏡の裏には収納があるので、見られたくないものの収納に便利

その他画像大容量のウォークインクローゼットは室内にタンスなどを置かずに済み、室内がいつでもスッキリ!

その他画像壁面クローゼットがあればタンスを置く必要がなく、出っ張りのないスッキリ空間を維持できます。

その他画像たくさんの靴だけでなく傘やコート、ベビーカーやゴルフバックなどいろいろ収納でき大変便利です。

その他画像全居室に広々とした収納スペース付き

その他画像お掃除やお手入れがしやすい全居室フローリング

周辺牛川小学校(1330m)

周辺青陵中学校(1730m)

周辺牛川育英幼稚園(260m)

周辺マム牛川店(650m)

周辺ローソン 豊橋牛川通店(160m)
| 所在地 | 愛知県豊橋市牛川通5丁目 | ||
|---|---|---|---|
| 価格 | 3,790万円 | 月々支払例 | 93,875円 |
| 間取り | 3LDK | ||
| 学校区 | 牛川小学校 青陵中学校 | ||
| 築年月 階数 |
2026年02月 2階建て | ||

3,790万円

93,875円
※全額借入、40年返済、変動金利0.89%の場合
| 物件種別 | 新築戸建 | ||
|---|---|---|---|
| 物件No. | t437567 | ||
| 所在地 | 愛知県豊橋市牛川通5丁目 | ||
| 小学校区 | 牛川小学校 (距離: 1330m) | 中学校区 | 青陵中学校 (距離: 1730m) |
| 土地面積 | 141.84m²(43坪) | 建物面積 | 101.84m²(31坪) |
|---|---|---|---|
| 構造 | 木造 | 階数 | 2階建て |
| 間取り | 3LDK | 築年月 | 2026年02月 |
| 駐車場 | 有(3台) (非課税) | 水道 | 公営 |
| ガス | オール電化 | 排水 | 下水 |
| 都市計画 | 市街化区域 | 用途地域 | 第一種住居 |
|---|---|---|---|
| 地目 | 宅地 | 土地権利 | 所有権 |
| 私道負担 | 地勢 | ||
| 建ぺい率 | 60% | 容積率 | 200% |
| 現況 | 未完成 | 引渡時期 | 相談 |
| 引渡可能年月 | 2026年02月 | ||
| セールスポイント | ■角地■長期優良住宅■安心と安全のオール電化住宅■ウォークインクローゼット完備の「3LDK」■ペニンシュラキッチン採用■室内設備充実■バス停「金田口」まで徒歩3分■全居室収納付き■買い物施設が徒歩圏内 | ||
| 備考 | 景観法による規制有、農地法届出要、宅地造成工事規制区域、都市再生特別地区 | ||
| 交通 | JR東海道本線 豊橋駅 バス乗車22分 バス停:金田口 停歩3分 |
||
|---|---|---|---|
| 接道状況 | 公道 公道 | ||
| 取引態様 | 仲介 | 取引条件の有効期限 | |
| 情報登録日 | 2026年01月10日 | 次回更新日 | 2026年01月24日 |

家デパ 豊橋店
0532-39-4453
受付時間/9:00~18:30
定休日/水曜日
定休日/水曜日
家デパ 豊川店
0533-56-7072
受付時間/9:00~18:30
定休日/水曜日
定休日/水曜日
家デパ 知立店
0566-91-3344
受付時間/9:00~18:30
定休日/水曜日
定休日/水曜日
家デパ 浜松店
053-401-6610
受付時間/9:00~18:30
定休日/水曜日
定休日/水曜日
愛知県豊橋市牛川通
【物件No.】
t437567
物件No.をお知らせください

新築戸建
タマタウン牛川通2 1号棟
間取り:
建物面積:-
土地面積:-
建物面積:-
土地面積:-
価格
万円
3,880
頭金/ボーナス支払
円
0
月々返済
円
96,104

新築戸建
豊橋市牛川通三丁目 2号棟
間取り:
建物面積:128.37m²
土地面積:197.93m²
建物面積:128.37m²
土地面積:197.93m²
価格
万円
3,880
頭金/ボーナス支払
円
0
月々返済
円
96,104

新築戸建
豊橋市西橋良町1期 3号地
間取り:
建物面積:-
土地面積:-
建物面積:-
土地面積:-
価格
万円
3,690
頭金/ボーナス支払
円
0
月々返済
円
91,398

新築戸建
リーブルガーデン豊橋第26高師緑地東 1号棟
間取り:
建物面積:101.04m²
土地面積:154.00m²
建物面積:101.04m²
土地面積:154.00m²
価格
万円
3,780
頭金/ボーナス支払
円
0
月々返済
円
93,627
-
豊橋市物件一覧(703件)
中古戸建…122件
新築戸建…172件
中古マンション…57件
土地…352件
-
豊川市物件一覧(315件)
中古戸建…64件
新築戸建…86件
中古マンション…13件
土地…152件
-
蒲郡市物件一覧(97件)
中古戸建…25件
新築戸建…50件
中古マンション…7件
土地…15件
-
額田郡幸田町物件一覧(1件)
中古戸建…1件
新築戸建…0件
中古マンション…0件
土地…0件
-
新城市物件一覧(23件)
中古戸建…13件
新築戸建…9件
中古マンション…0件
土地…1件
-
田原市物件一覧(51件)
中古戸建…16件
新築戸建…7件
中古マンション…1件
土地…27件
-
湖西市物件一覧(0件)
中古戸建…0件
新築戸建…0件
中古マンション…0件
土地…0件













